Skip to main content

Ontwerp uitbreiding woning voor- en achterzijde


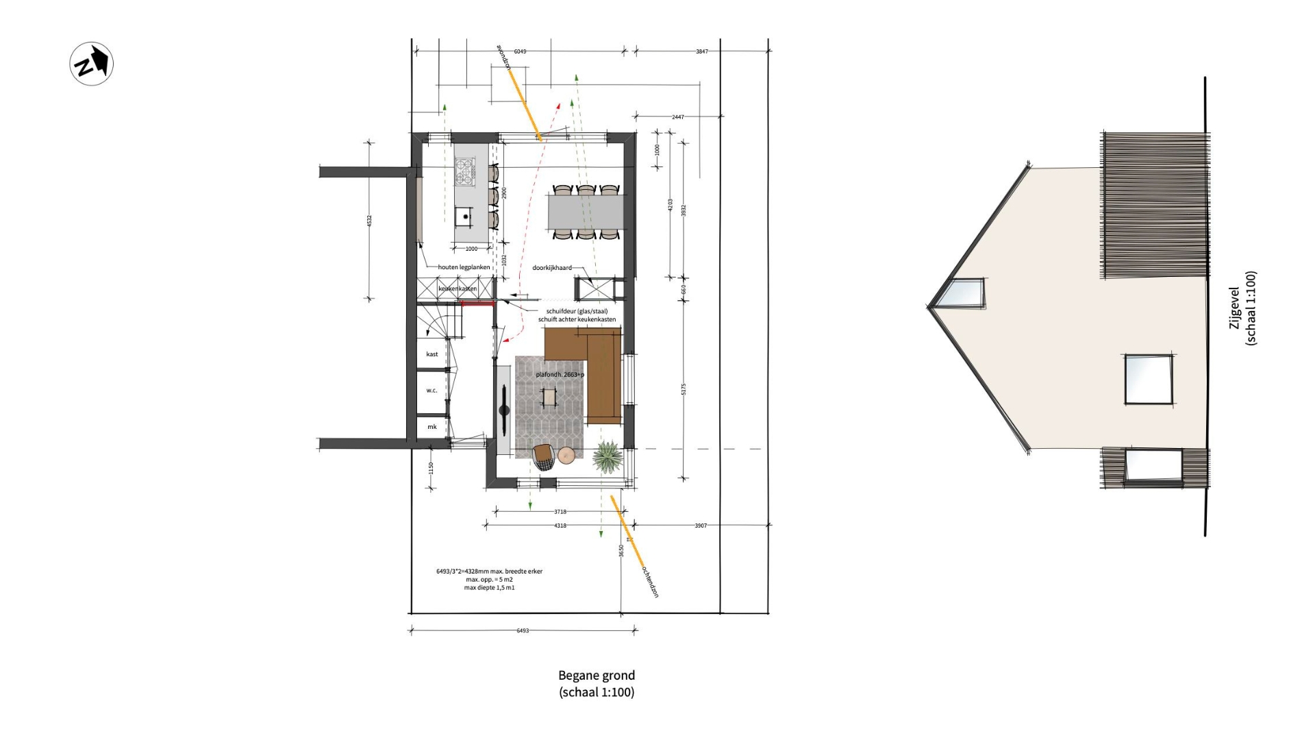
Uitbreiding woning Raalte

Woning waar een interne verbouwing wordt gecombineerd met 2 uitbreidingen aan de voor- en achterzijde. Door de materiaalkeuze worden beide uitbreidingen visueel met elkaar verbonden.

  • Uitbreiding woning voor- en achterzijde
  • Visuele verbinding door materiaalkeuze
  • In combinatie met interne verbouwing

Meer inspiratie


Ga voor meer inspiratie en voorbeelden naar overzicht alle projecten

Contact


Hebt u bouw- of verbouwplannen? Wilt u uw woon- of werkomgeving aanpassen, maar u heeft geen idee hoe of waar te beginnen?

Zoek niet verder. U hebt hem gevonden.

Mail, bel of spreek een van ons persoonlijk aan voor meer informatie en de mogelijkheden. Wij komen graag bij u langs voor een kennismaking zodat u ervaart wat Nonon Architectuur voor u kan betekenen! Geheel vrijblijvend, maar dat spreekt vanzelf.