Skip to main content

Ontwerp uitbreiding woning


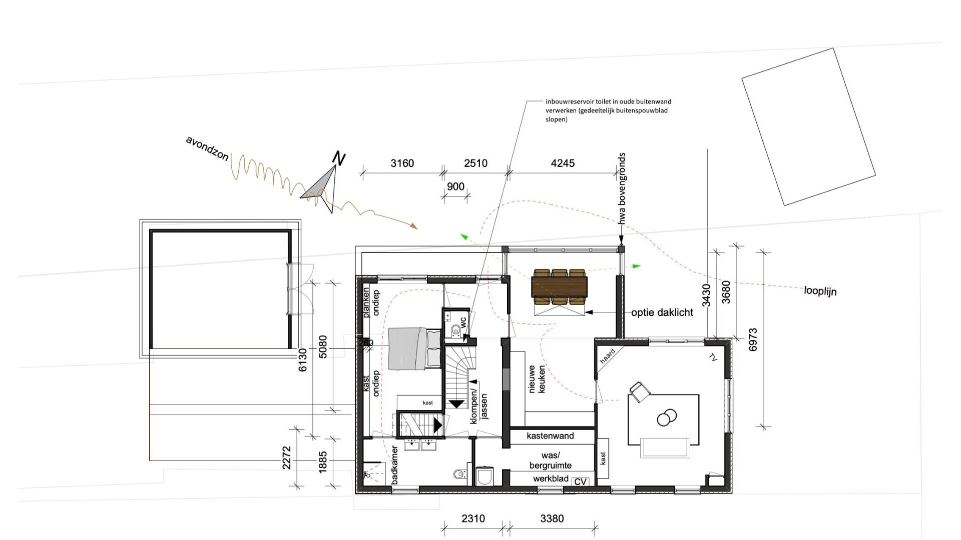
Levensloopbestendig wonen Luttenberg

Doordat de woning voornamelijk op het noorden is geörienteerd is veel daglicht wenselijk. De grote raampartijen in de uitbreiding voorzien hierin. Slapen op de begane grond is mogelijk door net even de paar extra vierkante meters van de uitbreiding.

  • Uitbreiding woning
  • Veel licht door grote raampartijen
  • Slaapkamer begane grond
  • Levensloopbestendig

Meer inspiratie


Ga voor meer inspiratie en voorbeelden naar overzicht alle projecten

Contact


Hebt u bouw- of verbouwplannen? Wilt u uw woon- of werkomgeving aanpassen, maar u heeft geen idee hoe of waar te beginnen?

Zoek niet verder. U hebt hem gevonden.

Mail, bel of spreek een van ons persoonlijk aan voor meer informatie en de mogelijkheden. Wij komen graag bij u langs voor een kennismaking zodat u ervaart wat Nonon Architectuur voor u kan betekenen! Geheel vrijblijvend, maar dat spreekt vanzelf.